ZpětÚvodNemovitosti ChrudimNájemní domy ChrudimProdej nájemní domy ChrudimProdej komerčního objektu - nájemního domu v centru Chrudimi, 3 byty (210 m2), 3 nebyty (140 m2)

Prodej komerčního objektu - nájemního domu v centru Chrudimi, 3 byty (210 m2), 3 nebyty (140 m2)

Prodej komerčního objektu - nájemního domu v centru Chrudimi, 3 byty (210 m2),  3 nebyty (140 m2) - Fotka 4

Prodej komerčního objektu (350 m2) se stabilním výnosem 4% p.a., tzn. 780 tis.Kč/ rok, resp. 65 tis./měsíc, v centru Chrudimi, na adrese, Soukenická č.p. 155, Chrudim.

Popis nemovitosti

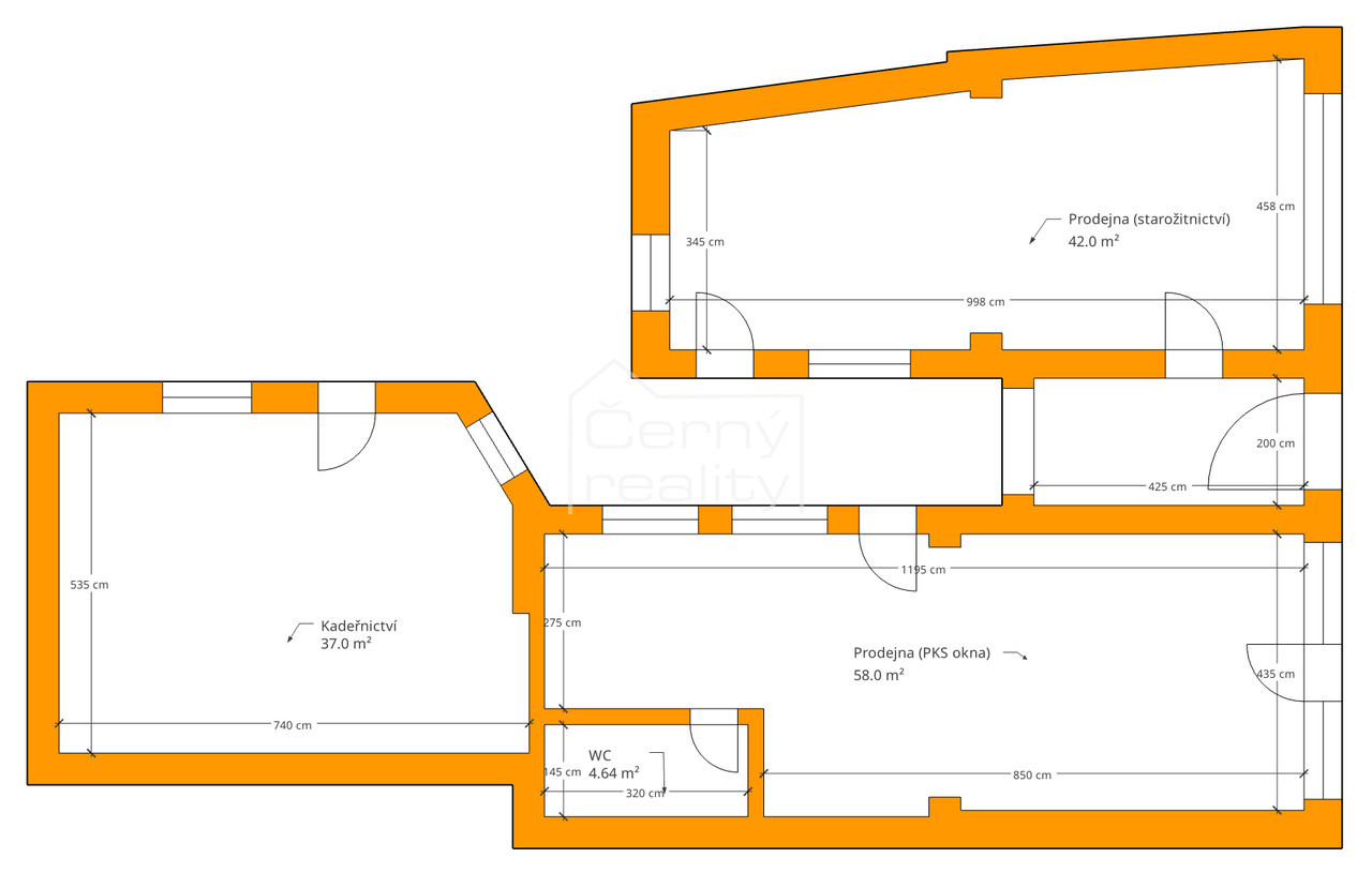
Jedná se o komerční objekt v centru Chrudimi, který prošel zásadní rekonstrukcí v letech 2004 - 2024. V přízemí se nachází 3 nebytové prostory, o plochách 58 m2 (pks okna), 42 m2 (starožitnictví) a 37 m2 (kadeřnictví) + dvorek 24 m2. V 1.patře jsou 2 bytové jednotky 2+kk, o plochách 47 m2 a 52 m2 +...

Celý popis

Cena: 19.750.000 Kč(za nemovitost)
Lokalita: Chrudim II, Chrudim, Pardubický
Stav nabídky: aktuální
Číslo:660
Typ reality: Nájemní domy
Plocha:380 m2
nahrvm...

Vlastnosti nemovitosti

Plocha
Plocha terasa:60 m2
Plocha obchody:140 m2
Užitná plocha:350 m2
Zastavěná plocha:230 m2
Základní vlastnosti
Technologie výstavby:cihlová
Stav objektu:velmi dobrý
Poloha objektu:v bloku
Umístění objektu:centrum obce
Celkový počet podlaží:3
Počet bytů v domě:3
Rok rekonstrukce:2016
Počet parkovacích míst:1
Počet pokojů:5 a více pokojů
Příslušenství a vybavení
Půdní vestavba:Ano
Sklep:Ne
Sítě a energie
Plyn:Ano
Elektro 230V:Ano
Vodovod:Ano
Kanalizace:Ano
Topení ústřední:Ano
Topení plyn:Ano
Telekomunikace
Internet:Ano
Občanská vybavenost
Železnice:Ano
Autobus:Ano
MHD:Ano
Dálnice:Ano
Školka:Ano
Škola:Ano
Lékař:Ano
Pošta:Ano
Obchody:Ano
Supermarket:Ano
Služby:Ano
Energie
Třída energetické náročnosti budovy:E - Nehospodárná
Energetická certifikace:Neuvedeno
Energetický průkaz:Stáhnout
Energetická náročnost:258 kWh/m2 za rok

zobrazit další vlastnosti

Máte zájem o tuto nemovitost? Josef Černý Vám poskytne více informací.

Položky označené hvězdičkou (*) jsou povinné.


Hledání nemovitosti


© 2026, www.realitycerny.cz – všechna práva vyhrazena

Prohlášení o přístupnosti | Ochrana osobních údajů | Mapa stránek

Realitní software dodává eBRÁNA | Software a informační systém pro realitní kanceláře REALBrána | Nabídka nemovitostí RB Reality

Nahoru ↑