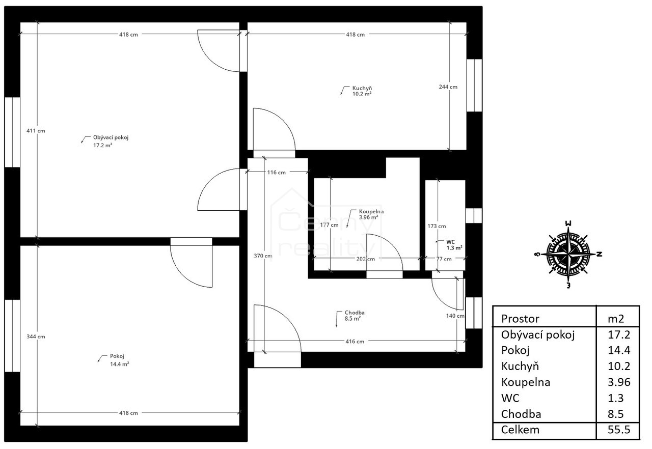
Prodej družstevního bytu 2+1 (55m2) ve Žďáru nad Sázavou, 3.NP, dva sklepy
  
  
    
  Vlastnosti nemovitosti
  
                Plocha
                
                  | Plocha sklep: | 9 m2 | 
                
                  | Užitná plocha: | 55 m2 | 
              
              
                Základní vlastnosti
                
                  | Vlastnictví: | družstevní | 
                
                  | Technologie výstavby: | cihlová | 
                
                  | Stav objektu: | velmi dobrý | 
                
                  | Umístění objektu: | sídliště | 
                
                  | Orientace: | J/S | 
                
                  | Celkový počet podlaží: | 4 | 
                
                  | Počet podlaží pod zemí: | 1 | 
                
                  | Číslo podlaží v domě: | 3 | 
              
  
  
              
                Příslušenství a vybavení
                
                  | Sklep: | Ano | 
              
              
                Sítě a energie
                
                  | Elektro 230V: | Ano | 
                
                  | Vodovod: | Ano | 
                
                  | Kanalizace: | Ano | 
                
                  | Topení ústřední: | Ano | 
                
                  | Topení dálkové: | Ano | 
              
              
                Telekomunikace
                
                  | Internet: | Ano | 
              
              
                Občanská vybavenost
                
                  | Železnice: | Ano | 
                
                  | Autobus: | Ano | 
                
                  | MHD: | Ano | 
                
                  | Školka: | Ano | 
                
                  | Škola: | Ano | 
                
                  | Lékař: | Ano | 
                
                  | Pošta: | Ano | 
                
                  | Obchody: | Ano | 
                
                  | Supermarket: | Ano | 
                
                  | Služby: | Ano | 
              
              
                Energie
                
                  | Třída energetické náročnosti budovy: | C - Úsporná | 
                
                  | Energetický průkaz: | Stáhnout | 
                
                  | Energetická náročnost: | 122 kWh/m2 za rok | 
              
    
   
  zobrazit další vlastnosti